Lokacija
Bulevar Svetog Pantelejmona 91B
Pantelej, Niš
Materijali
dekorativna cigla, izolacija 12 cm, PVC REHAU stolarija, granitna keramika
Spratnost
Po+P+6
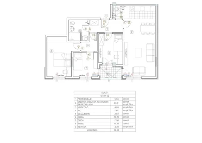
Opis objekta na bulevaru Svetog Pantelejmona 91B (Somborska), Pantelej, Niš:
Stambeno-poslovni objekat Po + P + 6 na bulevaru Svetog Pantelejmona 91B (u nekadašnjoj ulici Somborska bb), opština Pantelej, Niš, na lokaciji 300 metara od novog kružnog toka na raskrsnici sa Somborskim bulevarom i Studeničkom ulicom.
78 stanova i 9 lokala, sa garažnim i podrumskim prostorom.
Cena: 2100€/m² sa PDV-om, uz mogućnost povraćaja PDV-a.
Zgrada poseduje lift, podzemnu garažu (49 garažnih mesta i 5 garaža) i parking na platou (31 parking mesto).
Materijal:
- Fasada objekta je urađena od dekorativne cigle (listele) sa izolacijom od 12 cm.
- Stolarija PVC REHAU sa aluminijumskim roletnama.
- Lift proizvođača KONE.
- Granitna keramika.
- Konzolne WC šolje sa ugradnim vodokotlićima.
- Montaža nosača i odvod kondezata za klima uređaje.
- Cevna instalacija za radijatorsko grejanje na električni kotao.
- Pod parket – termotretirani hrast.
- Zvučna izolacija u podu i zidovima između stanova!
- Sistem za otapanje leda i snega.
Lokacija objekta je u novom stambenom naselju u Panteleju, koje je okruženo mnogobrojnim prodavnicama, apotekama, kafićima, sedištima kompanija i drugo. Na samo par metara od samog objekta nalazi se autobuska stanica. U blizini zgrade postoji i park sa zelenom površinom i rekvizitima za dečiju igru.
U krugu od 5 km nalaze se dve osnovne škole, ambulanta Doma Zdravlja Niš, filijale Pošte Srbije i nekoliko banaka.


















































































