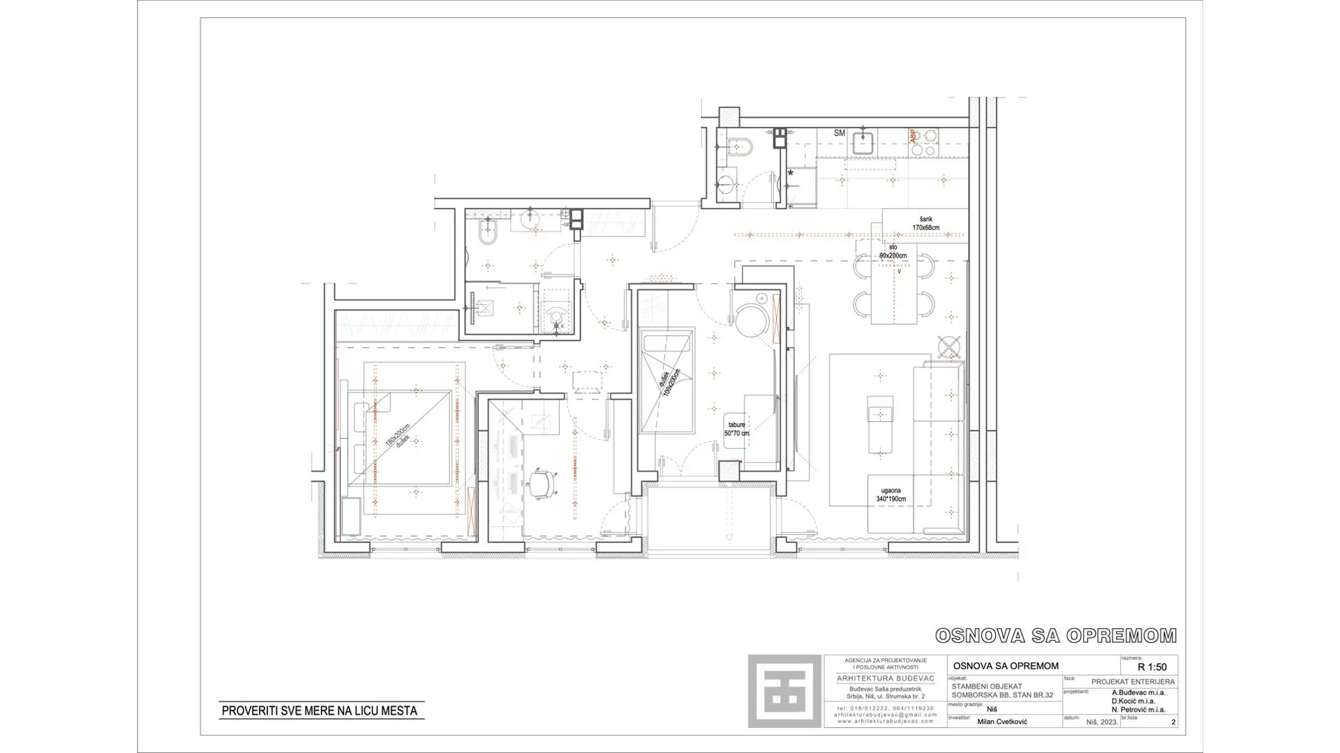
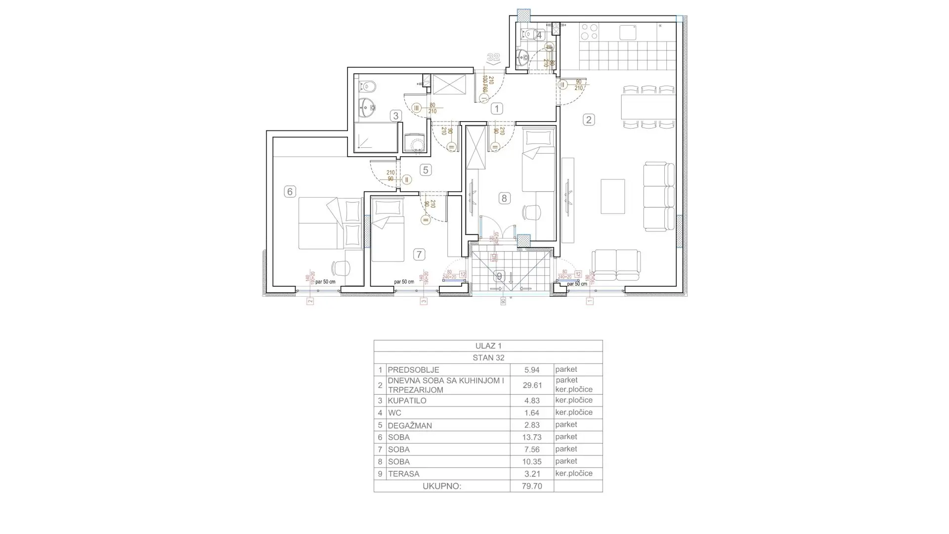
Stan S32 (Ulaz 1) se nalazi na šestom spratu, po strukturi je četvorosoban, orijentisan je ka jugu i ima urađenu toplotnu pumpu, rasvetu i spuštene plafone.
CENA: 2100€/m² sa PDV-om.
Dnevni boravak sa trpezarijom i kuhinjom čini jedinstvenu celinu, orijentisan je ka istoku i direktno povezan sa terasom.
Spavaća soba je orijentisana ka zapadu i preko predsoblja povezana sa sanitarnim čvorom i dveju dečijih soba.
Dečije sobe su orijentisane ka jugu i preko predsoblja povezane sa sanitarnim čvorom i spavaćom sobom.
